Wohnen im schönen Kreis 8
4 Zimmer Neubau-Wohnung (101 m2) mit 2 Balkonen
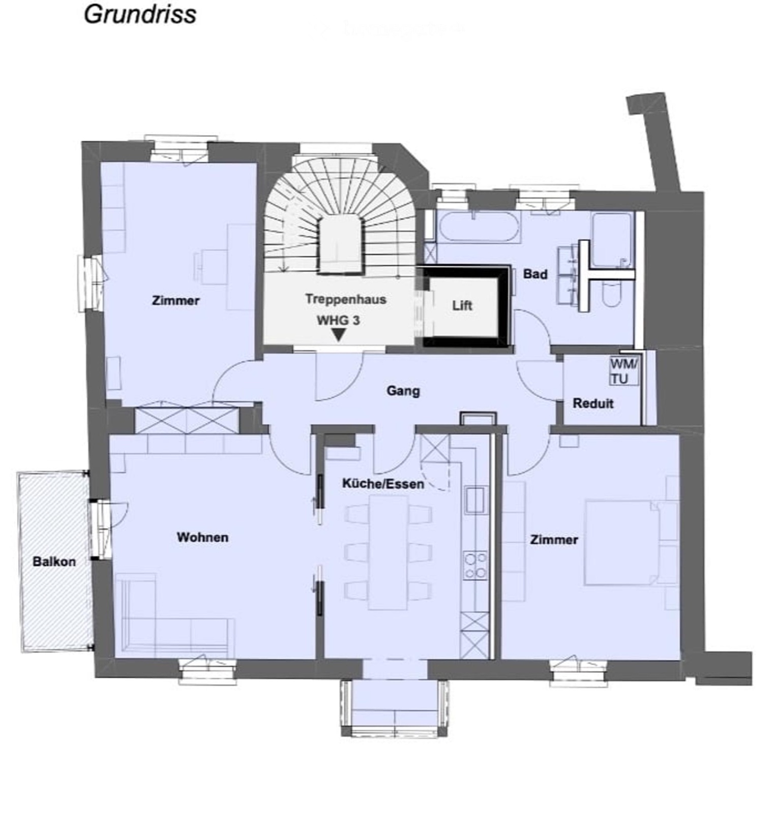
Im beliebten Seefeld, nahe Höschgasse, erwartet Sie diese attraktive Neubau-Wohnung mit zwei Balkonen und Lift. Hochwertiges Parkett verleiht den Räumen eine warme Atmosphäre. Die rund 18 m² grosse, funktionelle Chromstahl-Küche öffnet sich über Schiebetüren zum ca. 19 m² grossen Wohnzimmer und zu zwei Balkonen mit je rund 6 m² – ideal für urbanes Wohnen mit Aussenbezug. Das neue, ca. 8 m² grosse Badezimmer bietet Badewanne und separate Dusche, eine eigene Waschmaschine und Tumbler sorgen für zusätzlichen Komfort. Nachhaltige Erdsonden-Energie aus 300 m Tiefe garantiert effizientes und kostengünstiges Heizen. Ein vermasster Grundrissplan ist in den Fotos ersichtlich.









Verfügbar: per sofort oder n.V.
Anzahl Zimmer: 4
Wohnfläche: 101 m2
Etage: 4
Miete: CHF 4'890.-
Kontakt:
Caroline Staub
T 077 268 63 69

